1-værelses kollegie på 28 m² i Aarhus

Aarhus

Areal:
28 - 33 m2
Antal værelser:
1 værelse
Type:
Kollegie
Periode:
--
Overtagelsesdato:
Muligvis venteliste
Valideret af FindKollegie:
Ja
Sagsnummer:
348

Sabro Vænge Ungdomsboliger


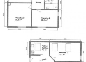
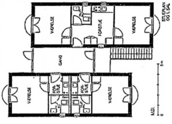
Afdelingen på Sabro Vænge indeholder 9 stk. 1-værelses ungdomsboliger, som alle er med eget toilet, bad og køkken.
I afdelingen er det tilladt at holde 1 hund eller 1 kat.

Faciliteter


  • Fællesvaskeri

  • Fælleslokale

Beliggenhed


  • Supermarked – 1,2 km.

  • Aarhus Universitet – 12,5 km.

Når du klikker på knappen ‘Kontakt kollegie nu’ så henviser vi til en side væk fra Findkollegie.dk. Vi samler alle kollegieer/kollegier i Danmark for at give dig overblik og spare tid i din boligsøgning, og når du ønsker at kontakte et eller flere kollegieer/kollegier, så linker vi videre til det konkrete kollegies/kollegies ansøgningssted, hvor du kan finde mere information og ansøge direkte. Mange af kollegieerne/kollegierne har ledige boliger nu og her, og andre skal man skrive sig på venteliste eller skrive en motiveret ansøgning for at komme i betragtning, næste gang der er en ledig bolig.

Er denne bolig ikke noget for dig?

Søger du bolig?

Klik her og start i dag. Søg mellem 692 kollegier.