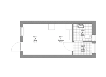
1-værelses kollegie på 26 m² i Herning

Herning

Areal:
26 - 50 m2
Antal værelser:
1 - 2 værelser
Type:
Kollegie
Periode:
--
Overtagelsesdato:
Muligvis venteliste
Valideret af FindKollegie:
Ja
Sagsnummer:
288

Birk Campus Studieboliger


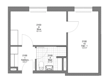
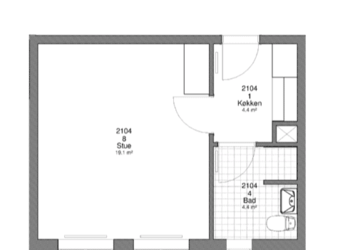
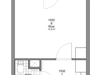
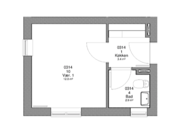
Birk Campus  stod færdigbygget i 2008, og indeholder idag 323 studieboliger. Opførslen af afdelingen startede i 1993, og nogle af boligerne er derfor bygget senere hen. Ud af de 323 boliger er 81 stk. på 1 værelse og de sidste 242 boliger er på 2 værelser. Selvom der findes forskellige boligtyper i afdelingen, er alle boligerne med eget toilet og bad samt køkken.

Faciliteter


  • Fællesvaskeri

  • Fælleshus

  • Motionsrum

  • Café

  • Fodbold- og beachvolleybane

  • Parkeringspladser

  • Cykelskure

Beliggenhed


  • Aarhus Universitets Institut for Forretningsudvikling og Teknologi – 300 meter

  • Birk Centerpark Station – 650 meter

  • Herning Centret (indkøb og shopping) – 2,3 km.

Når du klikker på knappen ‘Kontakt kollegie nu’ så henviser vi til en side væk fra Findkollegie.dk. Vi samler alle kollegieer/kollegier i Danmark for at give dig overblik og spare tid i din boligsøgning, og når du ønsker at kontakte et eller flere kollegieer/kollegier, så linker vi videre til det konkrete kollegies/kollegies ansøgningssted, hvor du kan finde mere information og ansøge direkte. Mange af kollegieerne/kollegierne har ledige boliger nu og her, og andre skal man skrive sig på venteliste eller skrive en motiveret ansøgning for at komme i betragtning, næste gang der er en ledig bolig.

Er denne bolig ikke noget for dig?

Søger du bolig?

Klik her og start i dag. Søg mellem 692 kollegier.