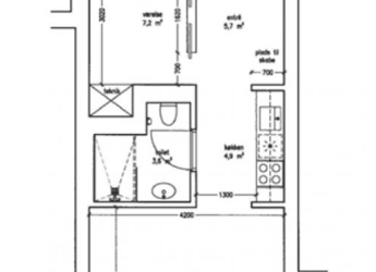
2-værelses kollegie på 32 m² i Aarhus

Aarhus

Areal:
32 - 46 m2
Antal værelser:
2 værelser
Type:
Kollegie
Periode:
--
Overtagelsesdato:
Muligvis venteliste
Valideret af FindKollegie:
Ja
Sagsnummer:
417

Anker Jensens Vej Ungdomsboliger


Afdelingen på Anker Jensens Vej indeholder 12 ungdomsboliger på 2 værelser. Ungdomsboligerne i afdelingen er alle med eget toilet, bad og køkken.
Husdyr er tilladt, og man må holde 2 indekatte.

Faciliteter


  • Fællesvaskeri

  • Festlokale

  • Gæsteværelse

  • Cykelrum

Beliggenhed


  • Supermarked – 1,3 km.

  • Aarhus Hovedbanegård – 3,4 km.

  • Fitness Center – 3,7 km.

  • Aarhus Universitet – 4,6 km.

Når du klikker på knappen ‘Kontakt kollegie nu’ så henviser vi til en side væk fra Findkollegie.dk. Vi samler alle kollegieer/kollegier i Danmark for at give dig overblik og spare tid i din boligsøgning, og når du ønsker at kontakte et eller flere kollegieer/kollegier, så linker vi videre til det konkrete kollegies/kollegies ansøgningssted, hvor du kan finde mere information og ansøge direkte. Mange af kollegieerne/kollegierne har ledige boliger nu og her, og andre skal man skrive sig på venteliste eller skrive en motiveret ansøgning for at komme i betragtning, næste gang der er en ledig bolig.

Er denne bolig ikke noget for dig?

Søger du bolig?

Klik her og start i dag. Søg mellem 692 kollegier.